Villa Vue Mer au Roucas Blanc
VILLA SUBLIMÉE VUE MER & PISCINE – ROUCAS BLANC Au Roucas Blanc, entre ciel et…
2 600 000 €
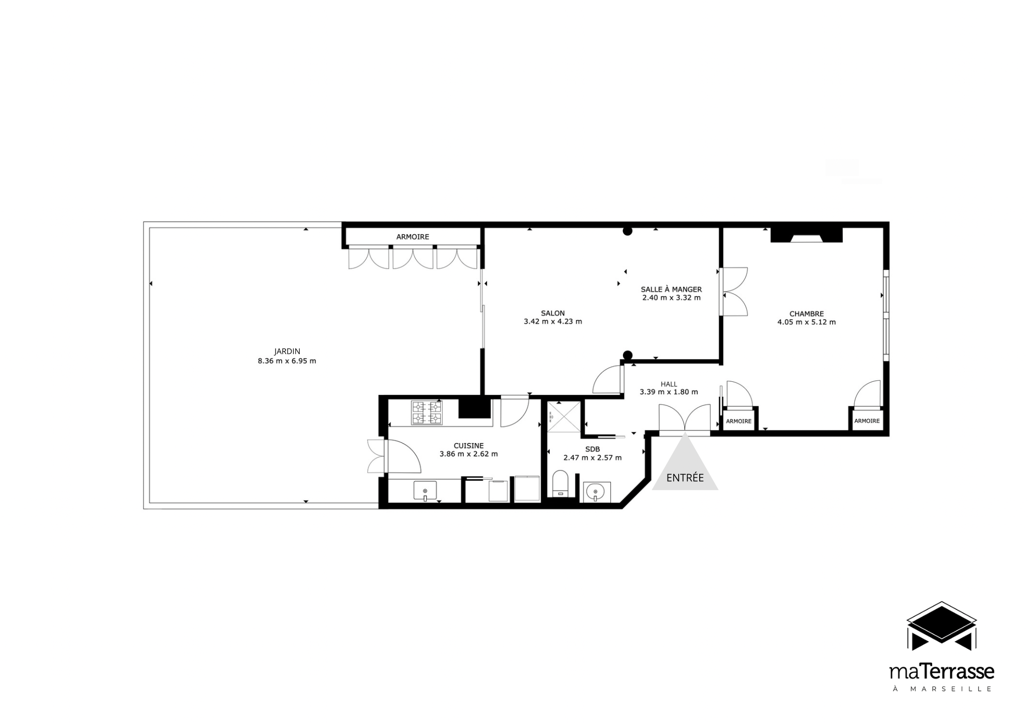
22, Rue Château Payan, Notre-Dame du Mont, Marseille
Sous compromis
295 000 €
Un rez-de-jardin baigné de soleil, rare en cœur de ville, où l’on vit dedans-dehors toute l’année.
Terrasse, jardin, lumière… ici, le quotidien prend immédiatement une autre allure.
Au cœur de Notre-Dame-du-Mont, dans une rue en pente où la lumière s’attarde plus longtemps, ce T2 en rez-de-jardin offre un équilibre précieux : le calme d’un extérieur, à deux pas de la vie de quartier.
Marchés, cafés, commerces, transports… tout se fait à pied, dans une atmosphère vivante et chaleureuse.
L’appartement séduit par sa belle hauteur sous plafond et son esprit Art nouveau, qui lui donnent caractère et personnalité.
Le séjour s’ouvre largement sur la terrasse et le jardin, véritable prolongement de l’espace de vie.
La cuisine séparée, elle aussi tournée vers l’extérieur, accueille un superbe évier en pierre de Cassis.
Côté nuit, une grande chambre de 19 m² offre la possibilité de créer une seconde chambre selon les besoins — un vrai potentiel d’évolution.
À l’extérieur, le jardin devient un lieu à part entière : lire au soleil, recevoir, jardiner ou simplement ralentir.
Un bien lumineux et singulier, pensé pour celles et ceux qui cherchent un rez-de-jardin en ville, un premier achat évolutif ou un pied-à-terre marseillais, entre douceur et énergie.
Impôt foncier : 1100€ ; charges 120€/mois.
Bien publiés
21
Owning a home is a keystone of wealth… both financial affluence and emotional security.
Suze OrmanTous nos biens à la vente
VILLA SUBLIMÉE VUE MER & PISCINE – ROUCAS BLANC Au Roucas Blanc, entre ciel et…
2 600 000 €
Maison vue mer, Roucas Blanc Au 388 chemin du Roucas Blanc, à l’abri du vent…
2 200 000 €
La Plaine – Dernier étage lumineux avec vue imprenable. Dès l’entrée de l’appartement, la vue…
335 000 €
A proximité des commerces de Saint-Barnabé, venez découvrir ce superbe T4 au premier et dernier…
498 000 €
RETOUR À LA VENTE ! À deux pas du port de pêche et de la…
270 000 €
Dès l’entrée, vous serez envouté.es par la vue imprenable sur le Vieux-Port : la Citadelle,…
790 000 €
A proximité des commerces de Saint-Barnabé, venez découvrir ce magnifique T4 en rez-de-chaussée agrémentée d’une…
378 000 €
Poussez la porte et découvrez un duplex traversant au charme singulier. Dès l’entrée, vous serez…
645 000 €
Au coeur du très agréable quartier de Lodi, venez découvrir ce bel appartement aux vues…
380 000 €
En plein coeur du quartier Vauban vous tomberez sous le charme de cette jolie maison…
720 000 €
Rare à la vente. Nichée sur la colline de Bompard face au Roucas-Blanc à l’abri…
1 790 000 €
Idéalement placé, au calme et à proximité des commerces et des transports, venez découvrir ce…
335 000 €
NOUVEAUTÉ/EXCLUSIVITÉ ! 13007 St VICTOR / ENDOUME. Au bout d’une impasse nichée au pied de…
450 000 €
Le soleil habite ce magnifique appartement, s’y réveille dans ses 2 chambres, passe à la…
545 000 €
VUE PLEIN CIEL SUR MARSEILLE Un dernier étage baigné de lumière, une terrasse au-dessus des…
785 000 €
Venez découvrir cette magnifique Bastide de 300m² du 17e siècle parfaitement entretenue vendue avec sa…
1 575 000 €
Les années art déco nous ont laissé des merveilles. Voici au dernier étage d’un splendide…
890 000 €
Dans le fameux quartier Montredon, donnant directement sur la plage de la Bonne Brise, ce…
299 900 €
Grand T5 à Noailles avec terrasse Niché au cœur vibrant du quartier de Noailles, dans…
498 000 €
Ce T5 rassemble tout les atouts demandés pour une vie tranquille dans ce quartier animé…
595 000 €
Certainement une des villas les plus hautes de Marseille. Une construction incroyable par sa position,…
685 000 €