T3 Calme et Lumineux à Vauban
Idéalement placé, au calme et à proximité des commerces et des transports, venez découvrir ce…
360 000 €
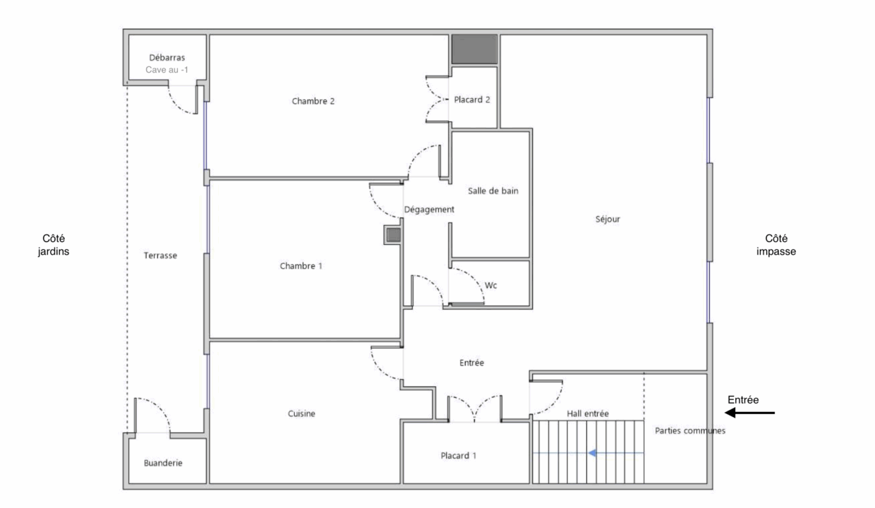
NOUVEAU PRIX ! /EXCLUSIVITÉ 13007 St VICTOR Au bout d’une impasse nichée au pied de la colline de Notre Dame de La Garde se trouve ce charmant T3.
Traversant, ce rez-de-chaussée lumineux et calme bénéficie d’une terrasse, d’une cave et d’une place de parking garantie devant votre habitation. Petite copropriété de deux co-propiétaires seulement et syndic bénévole donc pas de charges de copropriété.
Cet appartement est remarquablement bien agencé. Vous entrez par un hall d’entrée qui dessert les trois principaux espaces de l’appartement.
– Cuisine/terrasse : belle cuisine tout équipée, ouverte sur un joli extérieur de 12m² idéal pour prendre ses repas et se détendre. Derrière le muret de cette terrasse sans vis-à-vis se trouvent des petits jardins qui apportent de la fraicheur en été et le chant des oiseaux toute l’année. De part et d’autre de cette terrasse ont été aménagés deux « cafoutches» servant de buanderie pour l’un et de stockage avec accès à la cave pour l’autre (cave de 6m² en sous-sol).
– Séjour/salle à manger: côté impasse (au Sud) se trouve le grand séjour/salle à manger. Très lumineux, c’est la pièce de vie parfaite pour recevoir ou passer du temps en famille.
– Espace nuit: un couloir dessert des WC séparés, suivis d’une salle de bain très fonctionnelle. Sur la gauche côté cour vous accédez à la première chambre (actuellement chambre parentale), et au fond à la deuxième chambre (actuellement chambre d’enfants).
Cet appartement cumule les critères positifs les plus demandés : pas d’escaliers à monter, une place de parking, pas de charges du copropriété, pas de travaux à prévoir, calme, lumineux… Il est en plus situé dans le quartier « St Victor », l’un des plus recherchés de Marseille notamment pour sa proximité avec le Vieux-Port et le centre-ville, tout en étant à quelques minutes seulement des plages. Nombreux commerces de qualités, écoles, bus à proximité.
Chauffage individuel radiateurs.
DPE: D
GES: D
Taxe Foncière : 1350 €
Adresse précise: 15 Impasse Marignan, 13007.
> ESTIMATION : Pour pouvoir réagir rapidement et formuler une offre d’achat qui aura ses chances d’être acceptée, demandez-moi dès à présent une estimation gratuite de votre bien. William 0650729530
> AVANT-PREMIÈRES : Vous souhaitez désormais être informé de mes nouveautés avant tout le monde ? Suivez-moi directement sur instagram (@william_materrasse_a_marseille) et bénéficiez ainsi des avant-premières publiées en stories.
Bien publiés
17
Owning a home is a keystone of wealth… both financial affluence and emotional security.
Suze OrmanTous nos biens à la vente
Idéalement placé, au calme et à proximité des commerces et des transports, venez découvrir ce…
360 000 €
Venez découvrir ce splendide Duplex T5/T6 de 171m² au 8e et dernier étage d’une copropriété…
915 000 €
Niché au 3e et dernier étage avec ascenseur, venez découvrir ce ravissant T3 de 73m²…
359 000 €
Nouveauté en exclusivité ! Rare dans ce secteur, très belle opportunité de rénovation pour un…
380 000 €
VILLA SUBLIMÉE VUE MER & PISCINE – ROUCAS BLANC Au Roucas Blanc, entre ciel et…
2 600 000 €
T3 avec terrasse — calme absolu au Vallon des Auffes / Saint-Eugène Cet appartement de…
595 000 €
Au coeur du très agréable quartier de Lodi, venez découvrir ce bel appartement aux vues…
380 000 €
NOUVEAU PRIX ! /EXCLUSIVITÉ 13007 St VICTOR Au bout d’une impasse nichée au pied…
415 000 €
Rare à la vente. Nichée sur la colline de Bompard face au Roucas-Blanc à l’abri…
1 690 000 €
Dès l’entrée, vous serez envouté.es par la vue imprenable sur le Vieux-Port : la Citadelle,…
790 000 €
Maison vue mer et immense jardin au Roucas Blanc Au 388 chemin du Roucas Blanc,…
2 400 000 €
Idéalement placé, au calme et à proximité des commerces et des transports, venez découvrir ce…
295 000 €
NOUVEAU PRIX ! À deux pas du port de pêche et de la plage, dans…
259 000 €
Venez découvrir cette magnifique Bastide de 300m² du 17e siècle parfaitement entretenue vendue avec sa…
1 375 000 €
Découvrez ce grand T3 en duplex lumineux dans lequel les mots de Jean-Claude Izzo prenaient…
498 000 €
La Plaine – Dernier étage lumineux avec vue imprenable. Dès l’entrée de l’appartement, la vue…
335 000 €
A proximité des commerces de Saint-Barnabé, venez découvrir ce magnifique T4 en rez-de-chaussée agrémentée d’une…
378 000 €
Les années art déco nous ont laissé des merveilles. Voici au dernier étage d’un splendide…
795 000 €
A proximité des commerces de Saint-Barnabé, venez découvrir ce superbe T4 au premier et dernier…
498 000 €
VUE PLEIN CIEL SUR MARSEILLE Un dernier étage baigné de lumière, une terrasse au-dessus des…
785 000 €
Dans le fameux quartier Montredon, donnant directement sur la plage de la Bonne Brise, ce…
299 900 €
Ce T5 rassemble tout les atouts demandés pour une vie tranquille dans ce quartier animé…
595 000 €
Le soleil habite ce magnifique appartement, s’y réveille dans ses 2 chambres, passe à la…
498 000 €
Certainement une des villas les plus hautes de Marseille. Une construction incroyable par sa position,…
685 000 €